Immaculately renovated, beautifully combining 80s tradition with resort style living and monstrous entertaining. Commanding a sun drenched position in a premier Mount Warrigal location. Cafs, Beaches and all major amenities are a stroll away.
- Stylish lounge, gorgeous interiors with a convenient flow outdoors
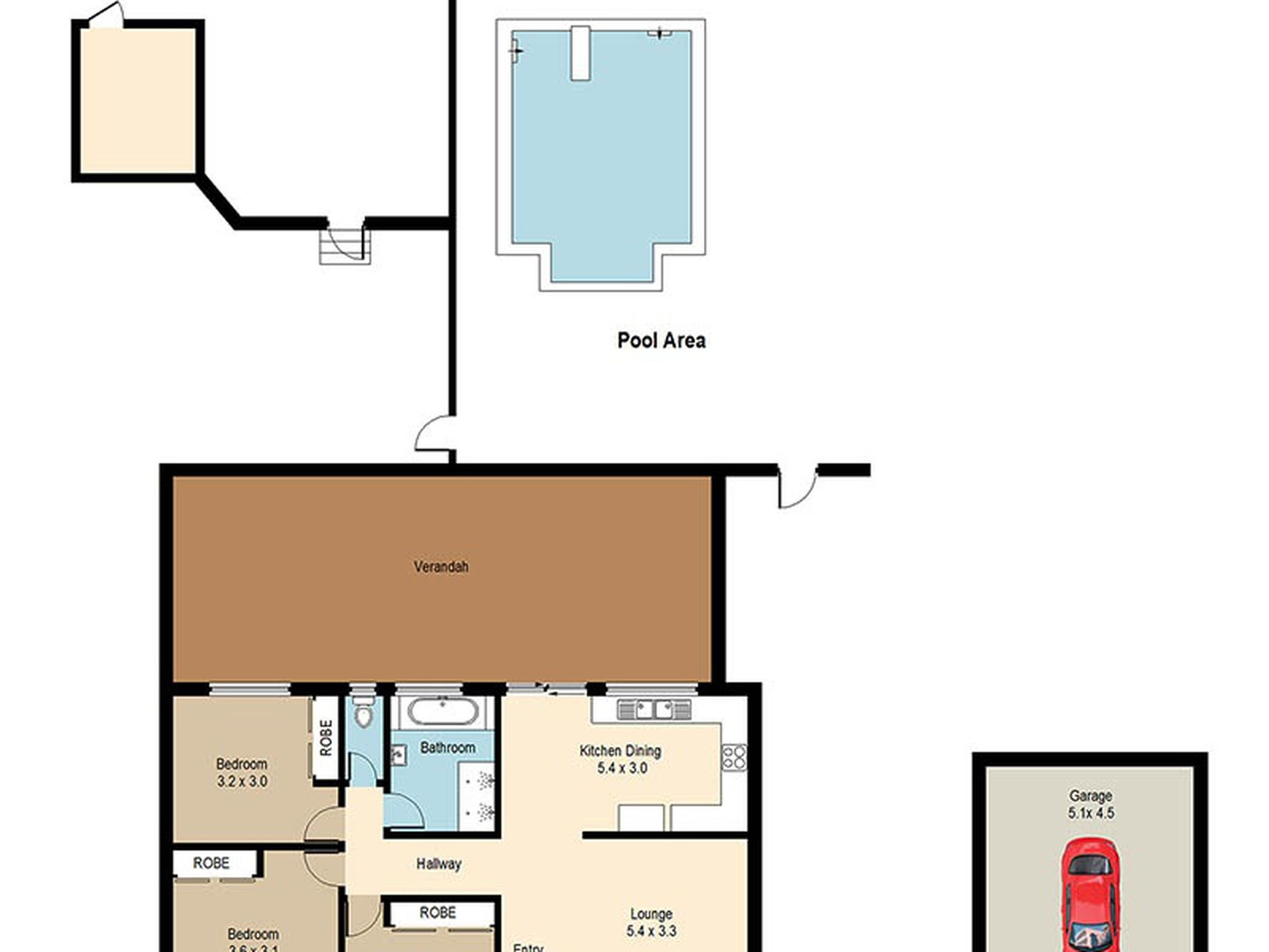
- In-ground swimming pool, private garden, studio/cabana with ensuite
- Stunning kitchen with plenty of cupboard space and quality appliances
- Chic and super modern bathroom with bath and wall to ceiling tiles
- Outstanding undercover entertaining area overlooking cabana & pool
- Cleverly enhanced to maximise space, privacy and natural light
- Automated garage boasting a car and half with room for the tools
- A short 5 minutes to Warilla beach and the gorgeous Lakes entrance
- Resort style property offering excellent family accommodation
Call Adam Martin 0408 411 723 or Luke Collins 0412 438 689























