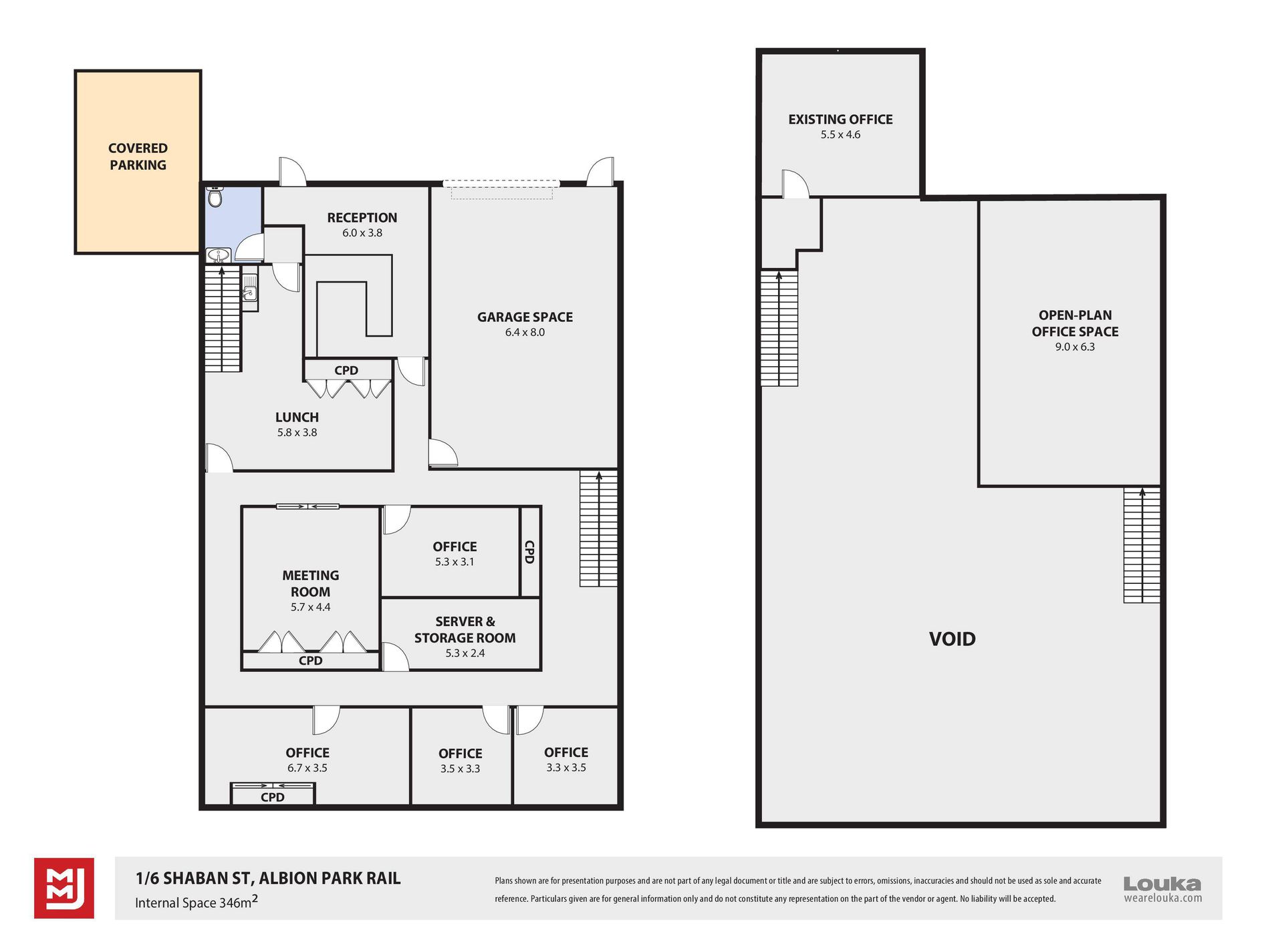
Ultra-modern industrial property boasting impressive high clearance access with separate office/mezzanine space. Prime location with excellent access to the freeway in very busy precinct.
* Total warehouse floor area 296.5sqm
* Office/mezzanine space totaling 25.5sqm
* Fitout can be negotiated or removed
* Amenities including disabled 10sqm
* Respective loading bay totalling 31.5sqm
* High clearance access through door & internally
* Impressive concrete tilt slab construction
* Bustling industrial park 90 mins south of Sydney
Call now for more information







































