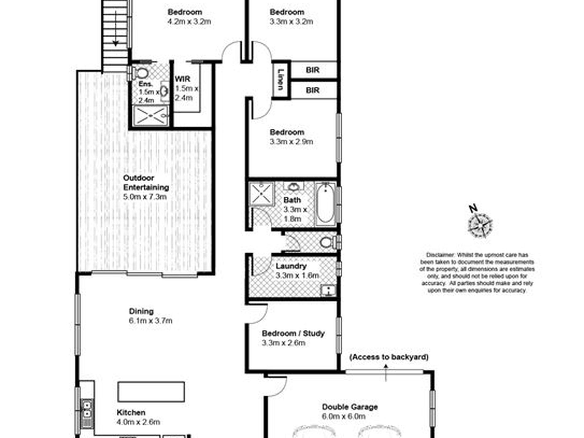
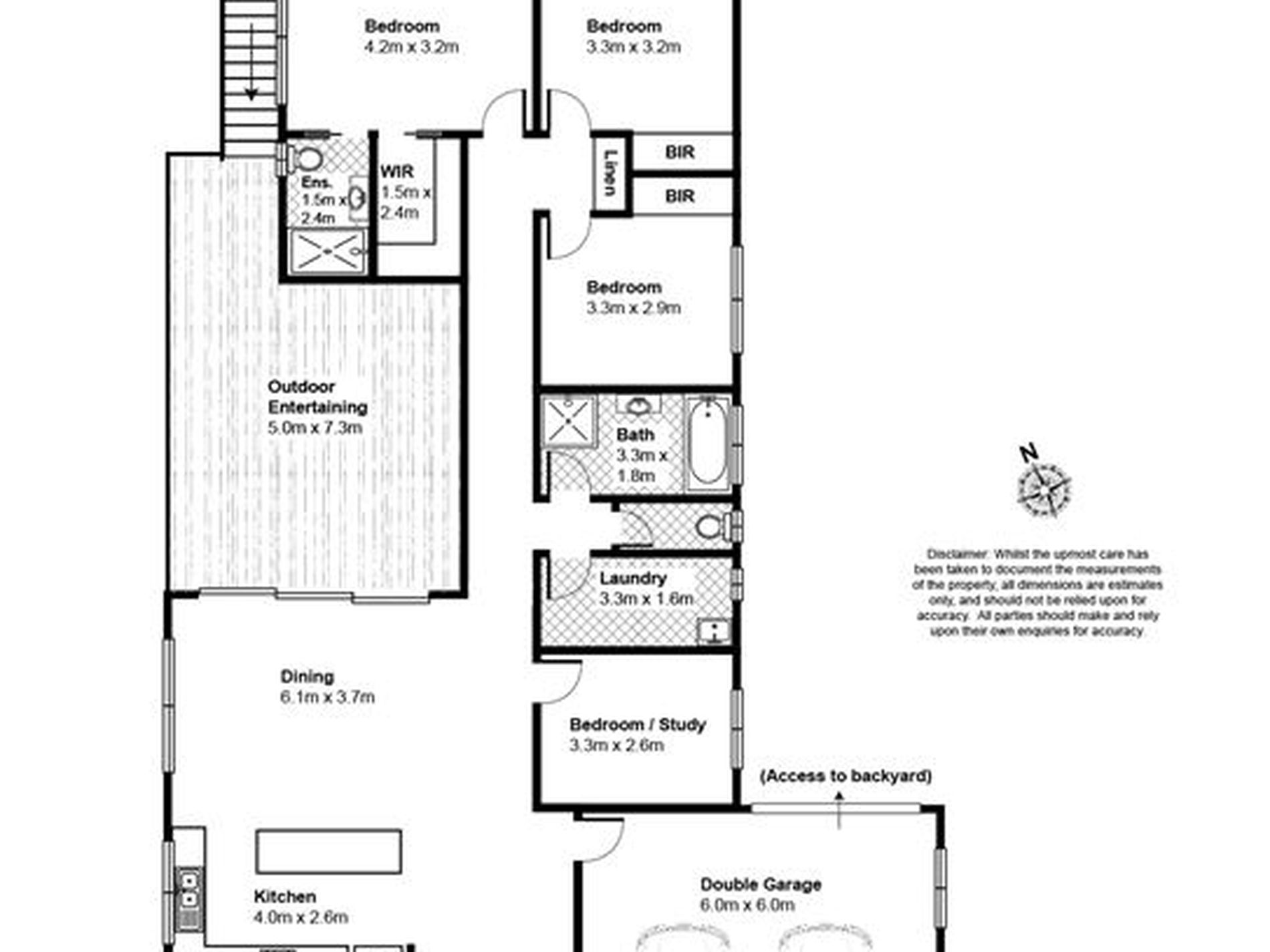
This beautiful brand new 3 bedroom plus study in a quite street. With separate lounge, kitchen, dining opens up to a lovely large deck for entertaining.
Bush land behind is tranquil so sit on the deck with a glass of wine and enjoy the serenity.
SORRY NO PETS

































