A handsome family entertainer framing scenic mountain views from the back patio, this light-filled property delivers a wonderfully serene retreat from the outside world.
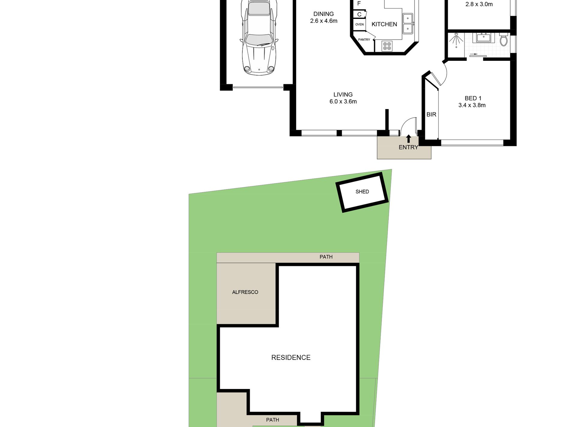
Solidly brick-built and immensely versatile in design, its welcoming layout flows freely through a selection of living rooms, a separate dining area, and a modern kitchen forming the heart of the home complete with stone benchtops, breakfast bench and dishwasher. Sliding screened doors open on to the oversized alfresco zone providing an all-seasons sunroof and surrounded by private child-friendly lawns.
Tranquil and inviting in every detail, the master bedroom is complemented by an ensuite and generous built-in wardrobe; the sparkling-fresh main bathroom presents with a luxurious spa tub. Beautiful floating floors and plantation shutters consolidate the homes sleek sense of style, while lock-up garaging with internal access ticks the final practical box.
Quietly yet centrally positioned, this quality residence blends low-maintenance comfort and easy convenience to perfection. Youll adore the effortless proximity to Mount Terry Public School, Albion Park shops and buses for Stockland and Shellharbour Beach, in an address increasingly desirable for its country feel only 25 minutes from Wollongong CBD.
Property Features:
House
4 beds
2 bathrooms
2 toilets
Land is 626m2 (approx.)
Mountain views
Formal lounge
Family living
Dining area
Stone benchtops
Dishwasher
Corner pantry
Master ensuite
Three built-in robes
Floating floors
Plantation shutters
Covered entertaining
Fully fenced backyard
Single garage
For further information, please contact Listing Agent, Corey Hamilton on 0474 705 842
Features
- Outdoor Entertainment Area
- Shed
- Fully Fenced
- Built-in Wardrobes
- Dishwasher
- Pay TV Access

















