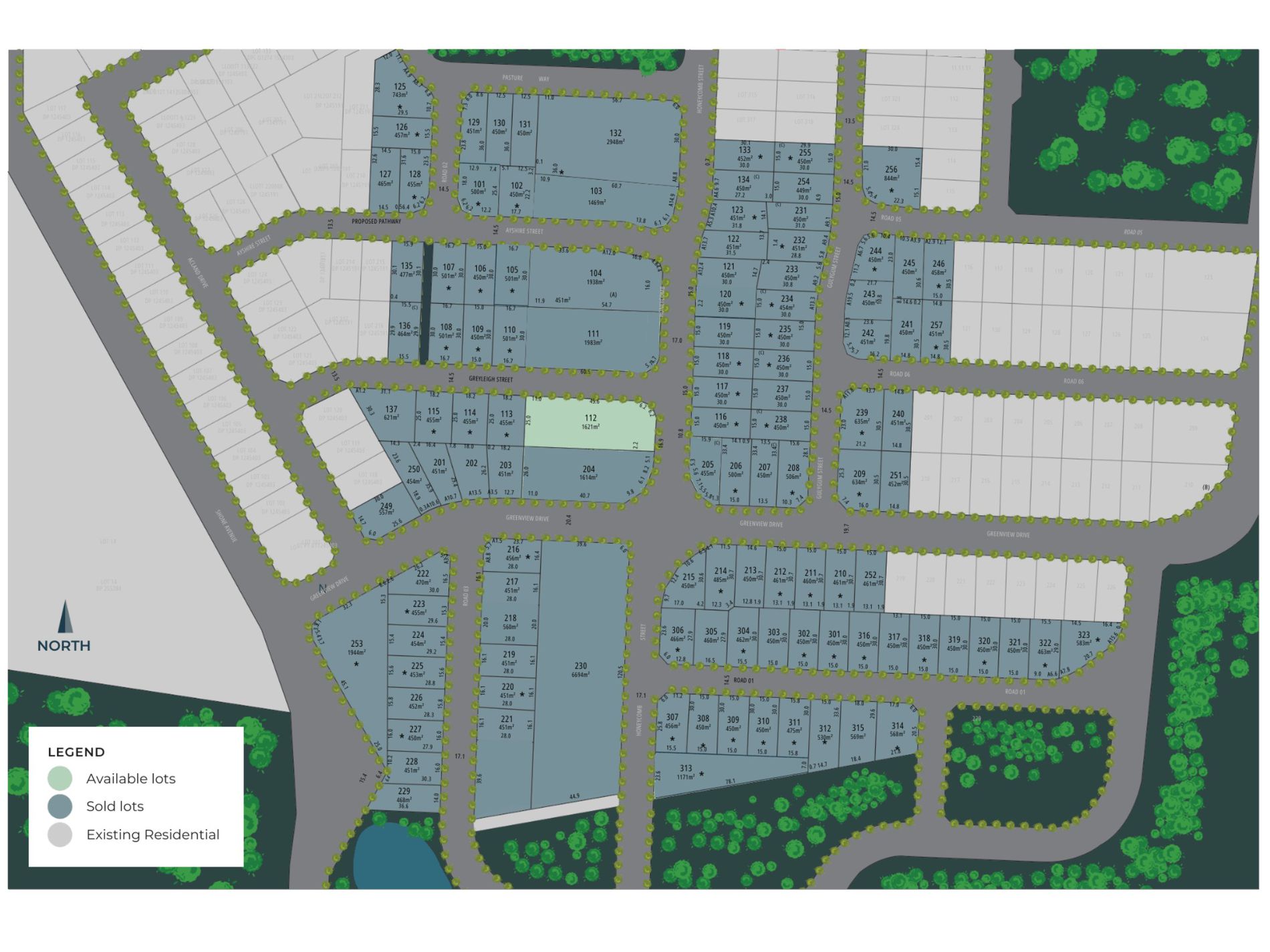
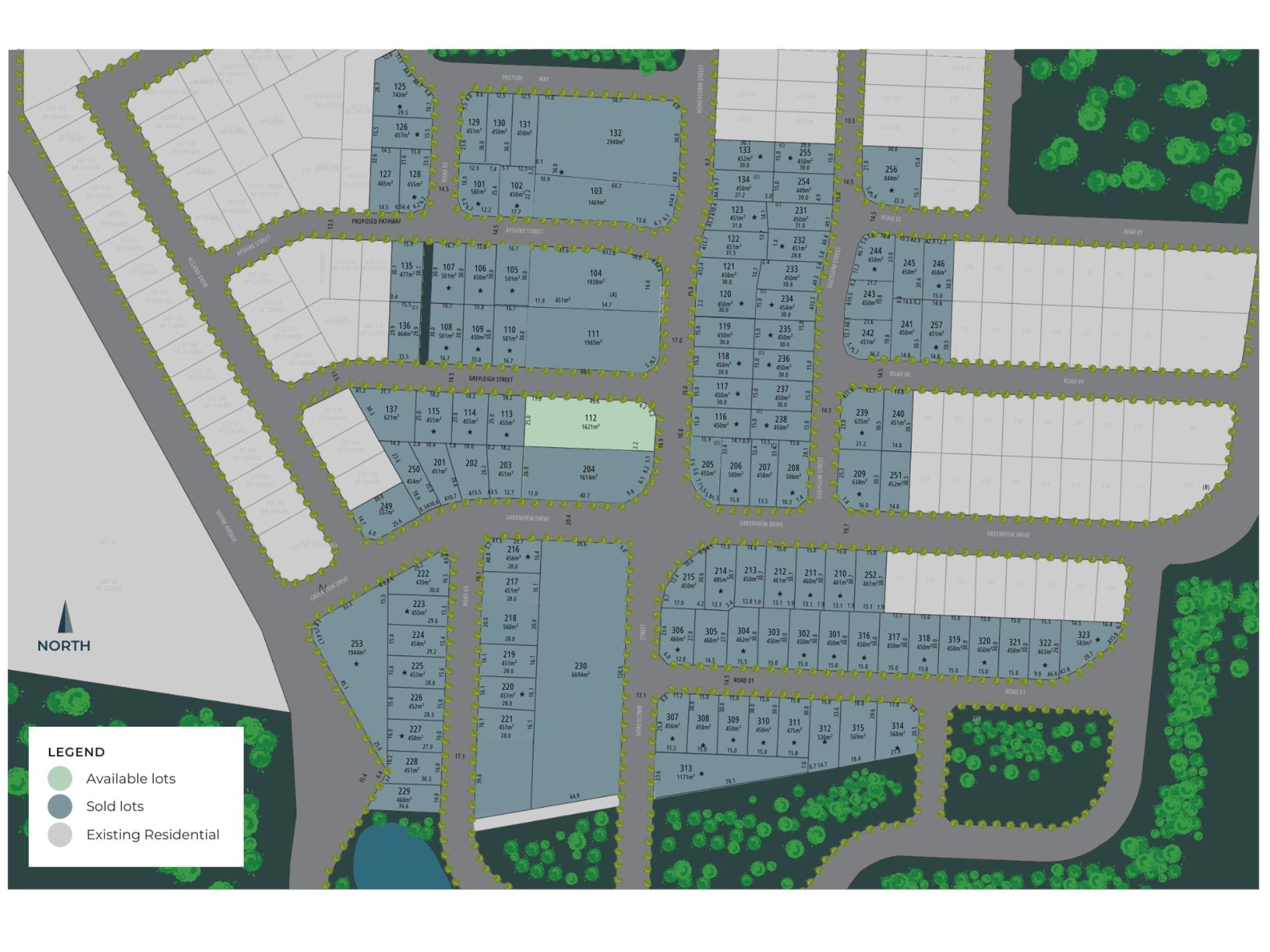
Seize the opportunity to secure one of Horsley’s rare lifestyle lots at 14 Greyleigh Street (Lot 112) – an expansive 1,621sqm parcel in the sought-after Fair Views Estate.
Perfectly positioned within the Illawarra’s fastest-growing region, this impressive block features an exceptionally wide 65.6m frontage and 25m depth (approx.), providing outstanding space and flexibility. With an 11m building width, it’s ideal for a project home or your own custom-designed architectural masterpiece.
Home & Land Concept Available
A house and land concept is available with Hotondo Homes, featuring The Elwood design – a well-considered 4 bedroom, 2 bathroom, single garage home, priced from $1,031,300*. This concept provides a fantastic starting point for buyers wanting the convenience of a ready-to-go package while still enjoying the lifestyle benefits of this large block.
With the land registered and ready to build, there is plenty of room to create the ultimate lifestyle property. Whether you're wanting space for outdoor entertaining, a large shed, boat or caravan storage, or a backyard where kids, pets, and even animals can roam freely, this near-level block provides endless possibilities.
You could even embrace sustainable living with a chicken coop, raised veggie gardens, or orchard plantings – all while enjoying the peace and space this generous parcel provides.
Contact our dedicated team today to secure this rare parcel of land.
Reach out to Arlo Jones on 0416 816 311 or Fiona Leslie on 0425 310 296.
Disclaimer: The home and land package price is indicative only and subject to change. The home design shown is a concept only and may be subject to council approval, developer guidelines, site conditions, and builder requirements. This plan and details herein are provided as a guide only and should not replace professional advice or judgment.



















