Presented by Liam Tebbutt and Robert Gooch of One Agency Elite Property Group.
Welcome home to 29 Greenwell Point Road, Nowra. This solid brick home offers an exceptional opportunity for first home buyers, savvy renovators, or tradies seeking space and flexibility. Set on a 683m block, the property combines practical living with potential to expand or personalise to suit your lifestyle.
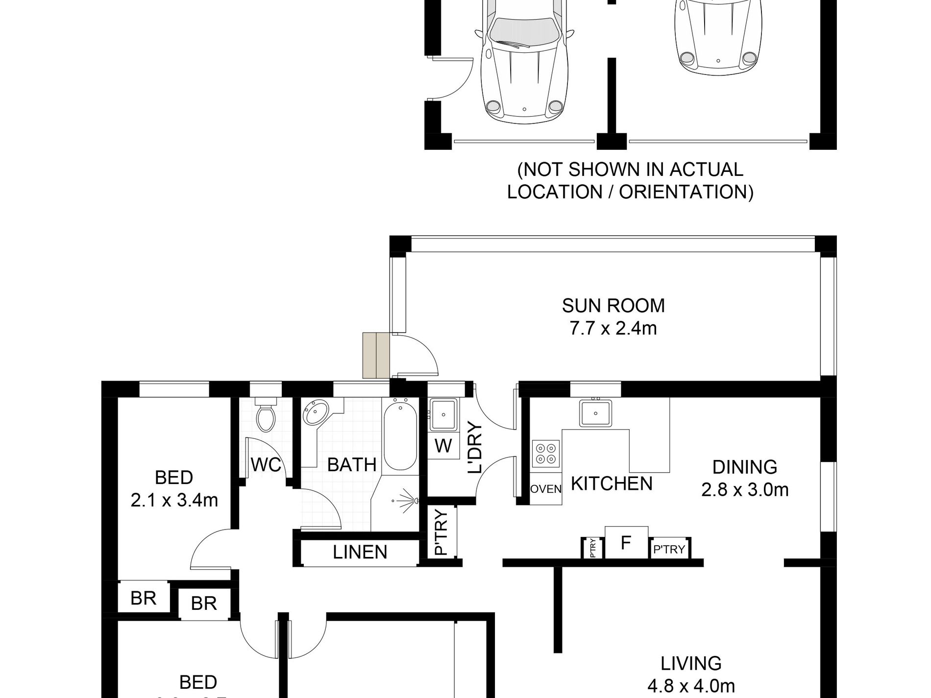
Inside, the home features three generous bedrooms, all carpeted for comfort. The master boasts extensive built-in storage and a ceiling fan/light combo, while the second and third bedrooms include built-in robes. The well-appointed main bathroom with shower and bath is complemented by a separate toilet. An additional toilet and shower is located in the garage for added convenience.
The kitchen is fitted with a Westinghouse cooktop and Simpson oven, opening onto a formal dining nook that flows into the cosy, carpeted living area with air conditioning. An enclosed veranda at the rear serves as a fantastic sunroom the perfect space to enjoy year-round indoor-outdoor living.
Tradies and hobbyists will love the detached double brick garage, complete with power, water, and its own bathroom facilities. With ample room for tools or a workshop, it also holds great potential for conversion into a second dwelling, subject to council approval.
- Brick home on 683m level block
- Three bedrooms, all with built-ins
- Two bathrooms one in-house, one in garage
- Kitchen with Westinghouse cooktop and Simpson oven
- Cosy, carpeted living with air conditioning
- Enclosed rear veranda ideal as a sunroom
- Detached brick double garage with power, water, and bathroom
- Prime opportunity for first home buyers, renovators or tradies
Features
- Air Conditioning
- Remote Garage
- Fully Fenced
- Secure Parking
- Alarm System
- Built-in Wardrobes





















