Presented by Samuel Neill and Sebastian Mitchell of One Agency Elite Property Group.
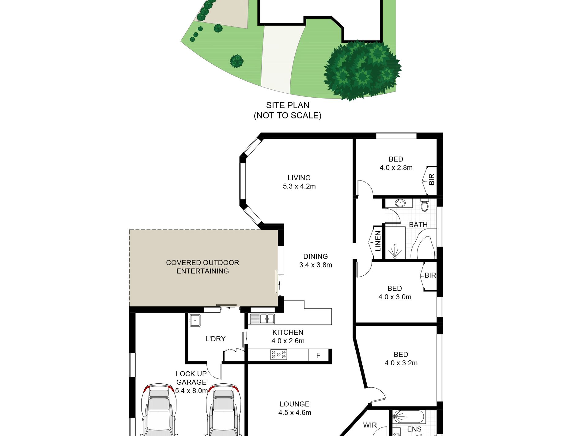
Welcome to 5 Dawson Place, Albion Parka home where family memories are waiting to be made. Nestled in a quiet cul-de-sac in a peaceful, family-friendly neighbourhood, this beautifully presented four-bedroom, two-bathroom property offers the perfect blend of comfort, space, and convenience.
Set on a generous 623m block, this home is designed for growing families. The modern kitchen, with its ample storage and clever layout, is a dream for preparing meals while staying connected with loved ones. Two separate living areas provide plenty of space for everyonewhether its relaxing together or enjoying quiet time.
The bedrooms are cosy and inviting, with three featuring built-in robes and the main bedroom fitted with a walk in wardrobe, ensuring every family member has their own special retreat. The bathrooms are thoughtfully designed, with a spacious main bathroom offering a soothing bathtubperfect for unwinding after a busy day.
Outside, the large backyard is a haven for kids to explore and play, while the outdoor entertaining area is perfect for family barbecues and gatherings with friends. The double garage provides secure parking and extra storage space for bikes, tools, or weekend adventure gear. Side access makes storing a trailer, caravan, or boat incredibly easy, adding to the homes practicality.
Key Features:
- Four generously sized bedrooms, three with built-in robes and main with a walk in wardrobe
- Two bathrooms, including a family-friendly main bathroom with a bath
- Updated kitchen with plenty of storage for all your needs
- Two living areas, ideal for family time and personal space
- Year-round comfort with split-system heating and cooling
- A spacious 623m block with a big, kid-friendly backyard
- Outdoor entertaining area
- Double garage for secure parking and storage
Located in a lovely community close to schools, parks, and local conveniences, 5 Dawson Place is ready to welcome you home. Dont miss the chance to create cherished memories in this family oasis!
Features
- Air Conditioning
- Split-System Air Conditioning
- Outdoor Entertainment Area
- Fully Fenced
- Secure Parking
- Built-in Wardrobes
- Dishwasher
- Floorboards

















