Presented by Timothy Peadon and Christopher O'Brien of One Agency Elite Property Group.
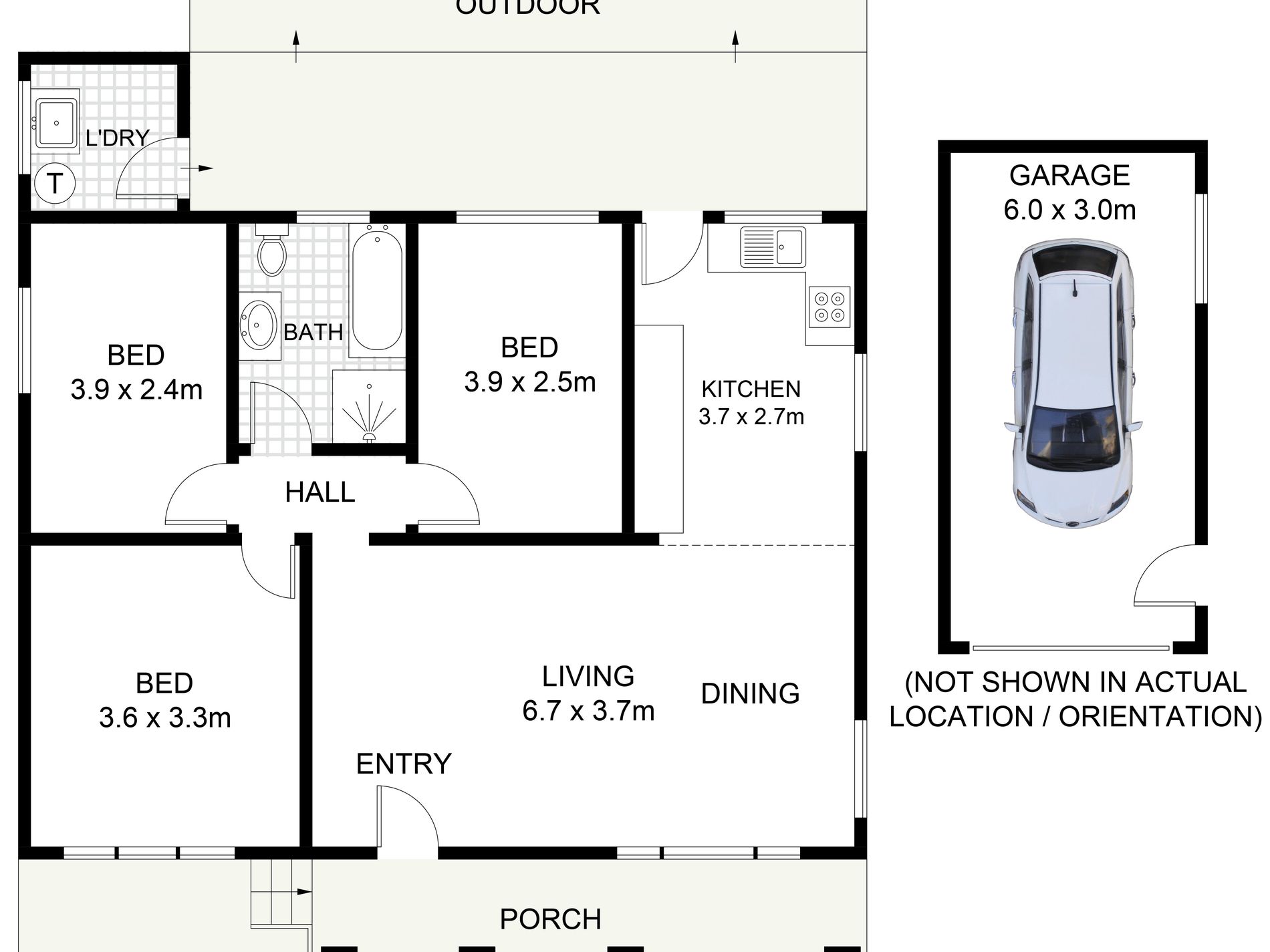
Positioned in the heart of the family-friendly Sanctuary Point community, this spacious 3-bedroom, 1-bathroom home offers a relaxed lifestyle just minutes from the white sands of Jervis Bay.
Step inside to discover an inviting open-plan living and dining area, filled with natural light and perfect for everyday living or entertaining family and friends. The kitchen is both functional and well-maintained, offering ample cupboard space and a layout that caters to modern family life.
All three bedrooms are generously sized, ideal for families, guests, or a work-from-home setup. The bathroom is neat and well-kept, complemented by a separate toilet for added practicality.
One of this homes standout features is its large, fully fenced backyard a blank canvas brimming with potential. Whether you dream of installing a pool, building an expansive outdoor entertaining area, planting a lush garden, or creating a space for the kids and pets to enjoy, theres plenty of room to make it your own. The generous yard also makes this property ideal for those considering future extensions or additions (STCA).
The detached single lock-up garage adds to the homes functionality, offering secure parking, extra storage, or space for a workshop or hobby zone.
- 3 spacious bedrooms
- Neat bathroom with separate toilet
- Open-plan living and dining
- Functional kitchen with ample storage
- Detached single lock-up garage
- Expansive, fully fenced backyard perfect for kids, pets, or future projects
Features
- Air Conditioning
- Split-System Air Conditioning
- Split-System Heating
- Balcony
- Outdoor Entertainment Area
- Remote Garage
- Fully Fenced
- Secure Parking
- Built-in Wardrobes
- Workshop
- Dishwasher





















