Presented by Robert Gooch and Amy Jarrett of One Agency Elite Property Group Shoalhaven.
Tucked away in a blue ribbon locale in North Nowra, this huge four-bedroom home presents an exceptional opportunity for families seeking the ultimate in entertaining and space. Set on a generous 1,016m block in a quiet and peaceful cul-de-sac, the property blends modern updates with a relaxed atmosphere, offering a private haven just minutes from schools, shops, and scenic walking tracks.
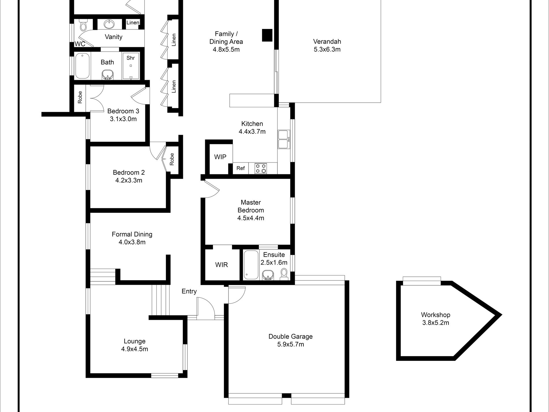
Inside, the home has been designed with family living in mind. Two separate living areas provide versatility for both quiet evenings and lively gatherings, enhanced by soaring skillion ceilings that create a wonderful sense of light and openness. A four-burner electric cooktop anchors the kitchen, which flows seamlessly to the dining, formal living and alfresco spaces, ensuring mealtimes and entertaining are effortless.
Accommodation is both practical and private, with the master suite enjoying its own ensuite and walk-in robe. Three additional bedrooms, each with built-in wardrobes, ensure the whole family is catered for, while the main bathroom features a family-friendly 3-way layout with both bath, shower and separate toilet. Quality updates including a brand new Actron 6 zone ducted air conditioning system, 38 solar panels with 15.5kw output, and a new electric hot water system deliver comfort and efficiency, while the freshly repainted exterior and restored roof offer peace of mind.
Outdoors, the home reveals a true sanctuary. The sparkling in-ground pool, complete with a new pump and heater, promises endless enjoyment through the seasons, while the covered alfresco area sets the stage for barbecues, birthdays, and summer afternoons with friends. Generous side access, a workshop, and plenty of yard space provide room for hobbies, pets, and play, making the property ideal for growing families.
The location is every bit as appealing as the home itself. Within walking distance of the tranquil Grotto walk tracks and moments from local parks, it encourages an active outdoor lifestyle. Families will appreciate the close proximity to quality schools and the convenience of North Nowra Shopping Village, both only a short drive away. This is a rare opportunity to secure a spacious home that offers not only comfort but a complete lifestyle package in one of North Nowras most desirable pockets.
Inspections are welcomed, contact Rob on 0419100279 or Amy on 0421325513 to schedule a viewing.
- Four-bedroom family home with master ensuite and walk-in robe
- Dual living areas with soaring ceilings and flexible layout
- Kitchen with freestanding four-burner gas cooktop flowing to dining and alfresco
- In-ground pool with new pump and heater plus covered entertaining space
- Generous 1,016m block with side access, workshop, and storage options
- Modern upgrades including solar panels, ducted air, and new hot water system
- Freshly repainted exterior and repointed, resealed roof for long-term peace of mind
- Quiet cul-de-sac within easy reach of schools, shops, parks, and Grotto walk tracks
- Prized Illaroo Road Public School catchment
Features
- Air Conditioning
- Ducted Heating
- Ducted Cooling
- Deck
- Outdoor Entertainment Area
- Swimming Pool - In Ground
- Fully Fenced
- Built-in Wardrobes
- Broadband Internet Available
- Dishwasher
- Pay TV Access
- Solar Panels





































