The ultimate site to maximise on your business endeavours or perhaps the ideal industrial development opportunity. Capitalise on the propertys spectacular exposure having direct access to the Princes Highway.
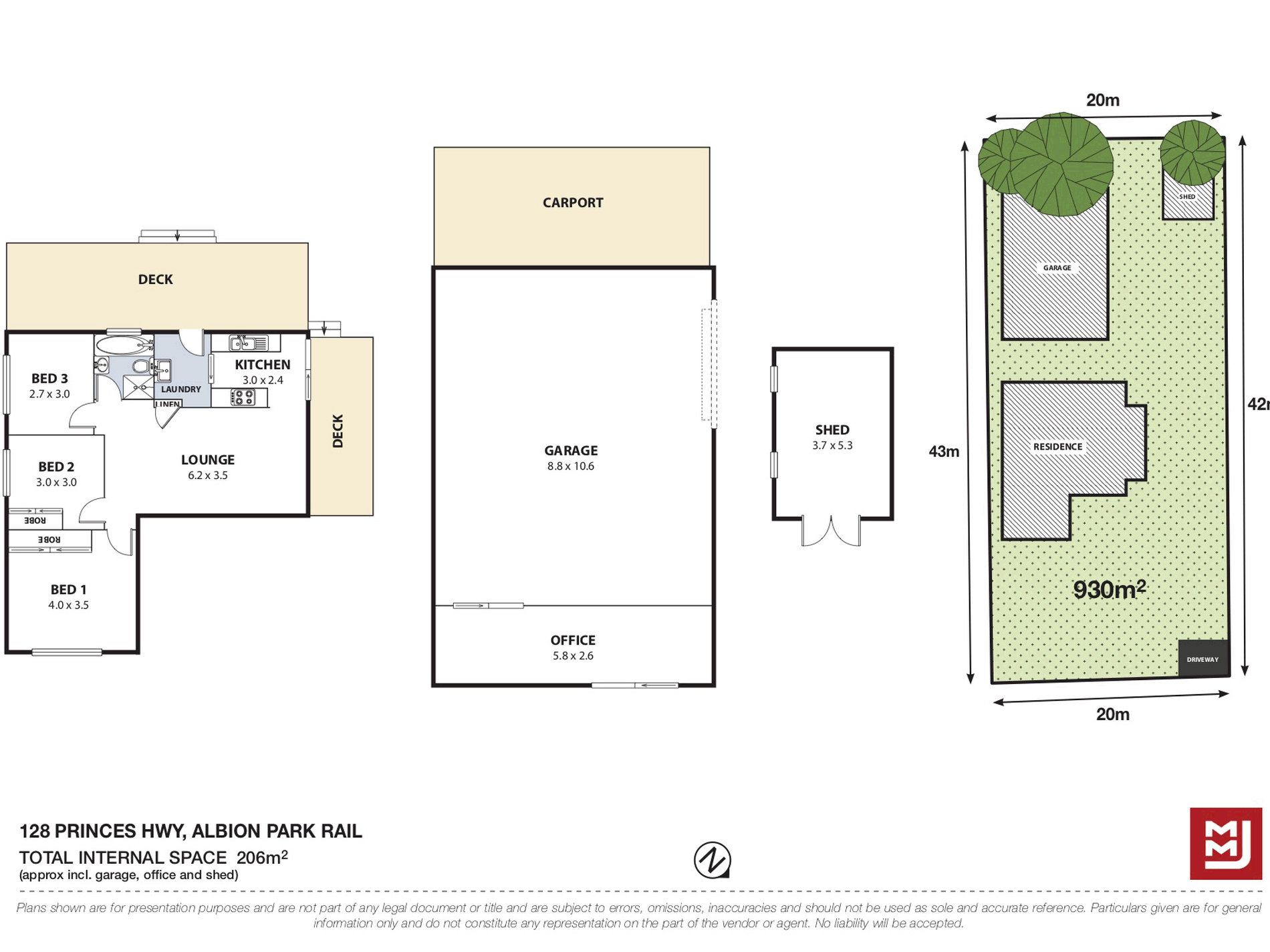
An ideal building block totalling a level 930 sqm
Three bedroom cottage with excellent workshop
The ultimate in exposure fronting Princes Highway
Fantastic rental history with increases warranted
Both the dwelling and rear shed currently leased
20m frontage rearing council property with access
Fully secured yard with great access to the airport
The perfect industrial development opportunity











