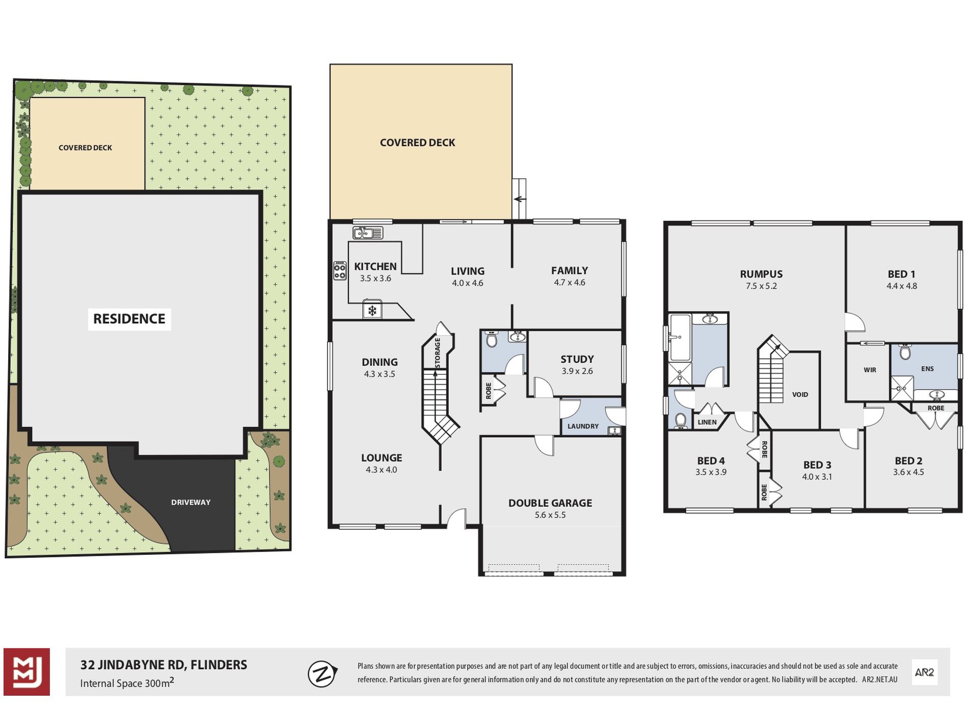
Architecturally designed to optimise space and natural light, this magnificent residence radiates class and quality. Built to last with a floor plan conducive for a busy family this property sits a short walk to Shellharbours world class beaches, local schools, parklands and the Shell Cove Marina precinct.
Grand entrance foyer leads to a choice formal and informal areas
Gourmet kitchen with stone bench tops and ample cupboard space
Both levels feature spacious and versatile light filled open areas
Boasting an oversized study area or perfectly suited fifth bedroom
Gorgeous timber floors on upper level with slick tiles on bottom
Impressive luxury master en-suite with large walk-in wardrobe
Floor to ceiling tiles in bathrooms with a corner bath to main
Interior opens out onto very impressive undercover entertaining
Manicured and sun-drenched backyard with side access to boot
Double automatic garage with internal access and plenty of space
Close proximity to shops, cafs, schools and The Shellharbour Club

















































