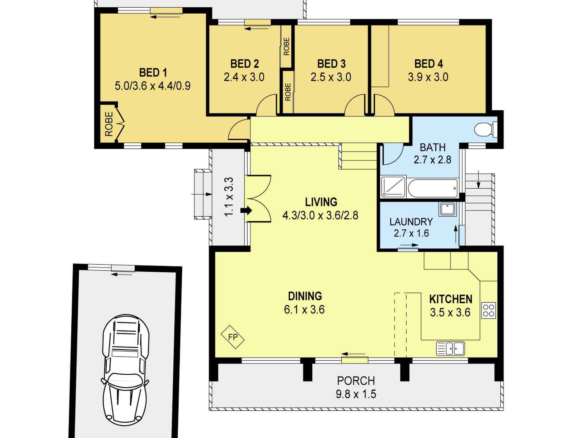
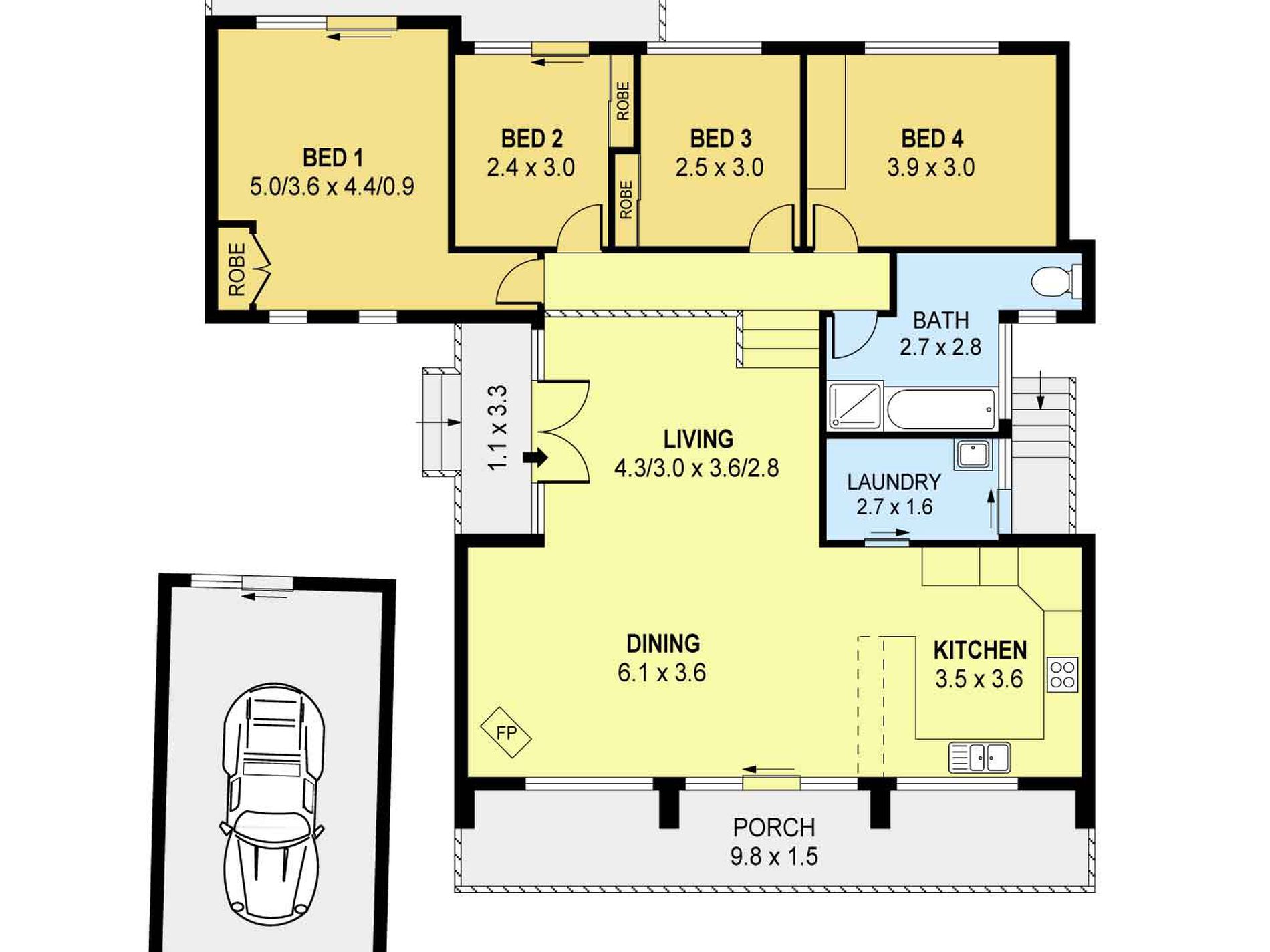
Sought after Mt Warrigal has never failed to have a lack of support from buyers. It has been one of those suburbs that consistently generates interest, irrespective of market conditions. The convenient proximity to both Lake Illawarra, the Lake's adorable Entrance, the choice of many beautiful beaches, schools and shopping precincts would no doubt have something to do with it. There are indicators of the market slowing, but we are yet to witness them and we can assure that this property will bring with it many buyers running. With a unique floor plan, created to maximise living spaces and to endure its excellent view West over the Lake and off to the Escarpment which, in our opinion, is the property's greatest asset. With four bedrooms to boot and an excellent undercover entertaining area we are sure that it will tick many, if not all of your property purchasing criteria. Please call Adam Martin 0408411723 or Luke Collins 0412 438 689 today!















