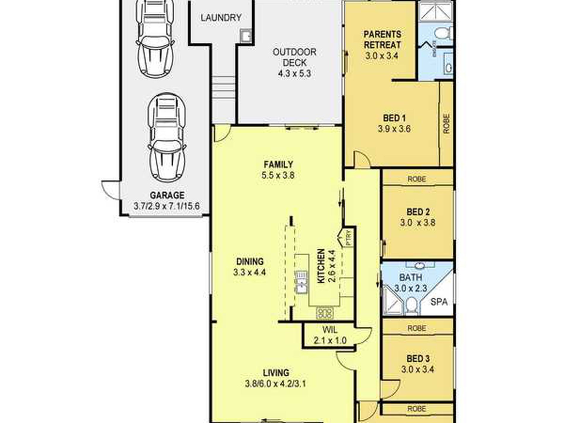
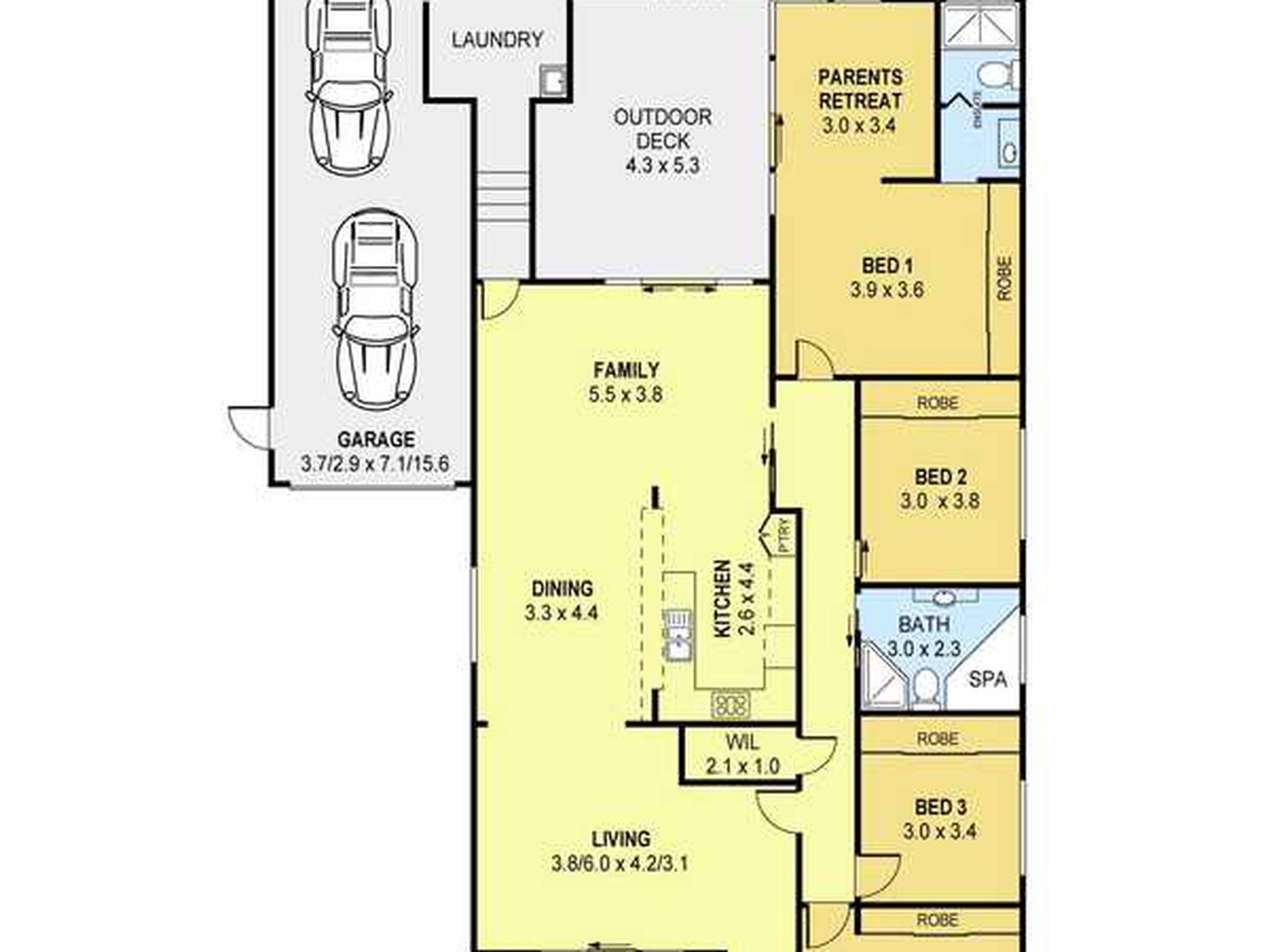
Why pay for a holiday when you can live here?! After enjoying the serenity of Warilla beach just moments away, return home to the ideal coastal retreat. With four good sized bedrooms each with BIW's, combined living/dining area and not one but two living areas, the whole family will love this one. The main bedroom offers a huge BIW and ensuite and a fantastic sundrenched parents retreat with easy access to the outdoor entertaining area. Even the fully fenced yard will add to your relaxation, with both front and rear landscaped gardens and a beautiful tropical sitting area in the back. As for parking and storage, you'll have plenty with a HUGE triple car garage and workshop both with internal access. So if you're looking for your own little piece of coastal paradise, look no further. Call us today!!!
Adam Martin 0408 411 723 or Dimitty Tabor 0434 745 520





















