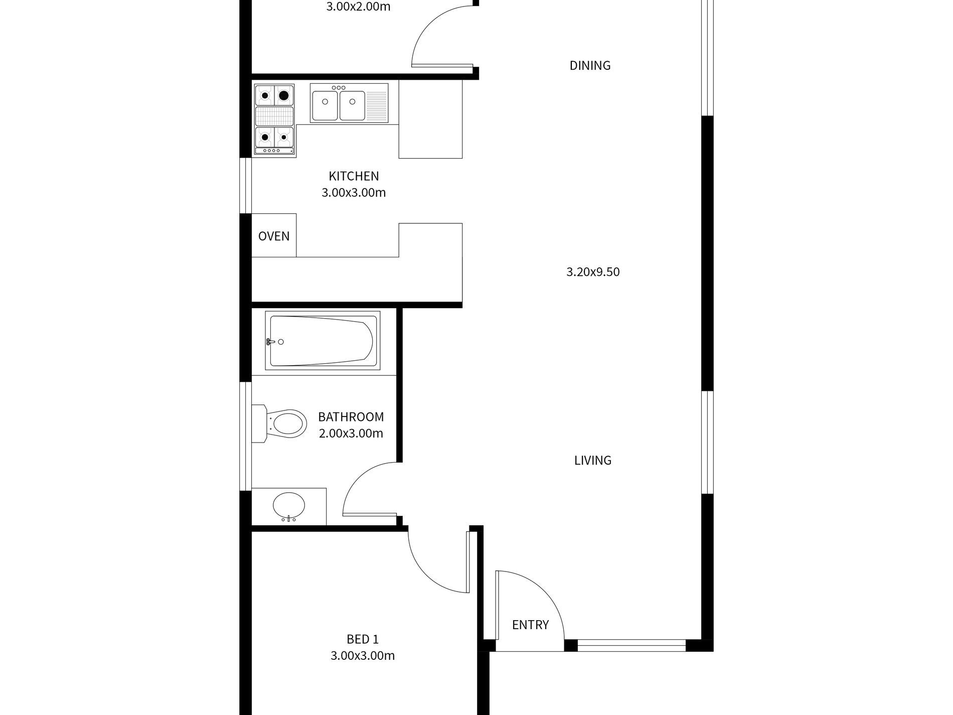
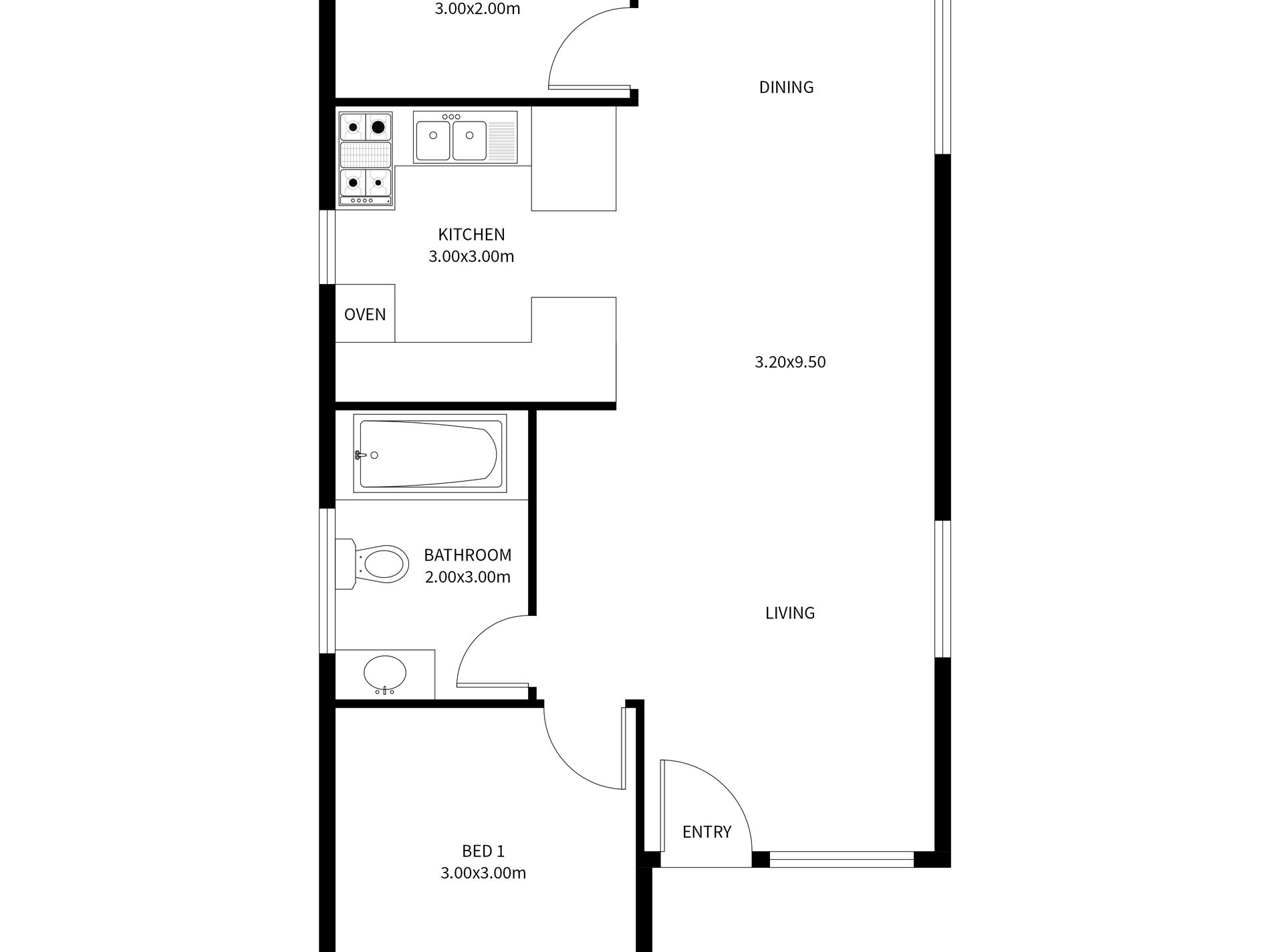
This character-filled cottage has a large sunny living area with beautiful floorboards, opening on a large undercover entertainers verandah that overlooks the lovely backyard and open space beyond.
A well-appointed kitchen is adjacent along with the full bathroom. The main bedroom is large and the second can fit two single beds. An air conditioning unit services the living & kitchen area.
The 696 sqm block is level and has driveway access to the rear yard - plenty of scope to build a big shed.
It is a short drive down to the picturesque boat ramp has direct access to Lake Conjola and you can travel all the way to the ocean and the surf. Lake Conjola is famous for watersports and excellent fishing.
Phone Alan on 0408 188 661 to discuss this priced-to-sell opportunity.
Please note 2 Images have been digitally styled.
Features
- Air Conditioning
- Deck
- Shed
- Floorboards































