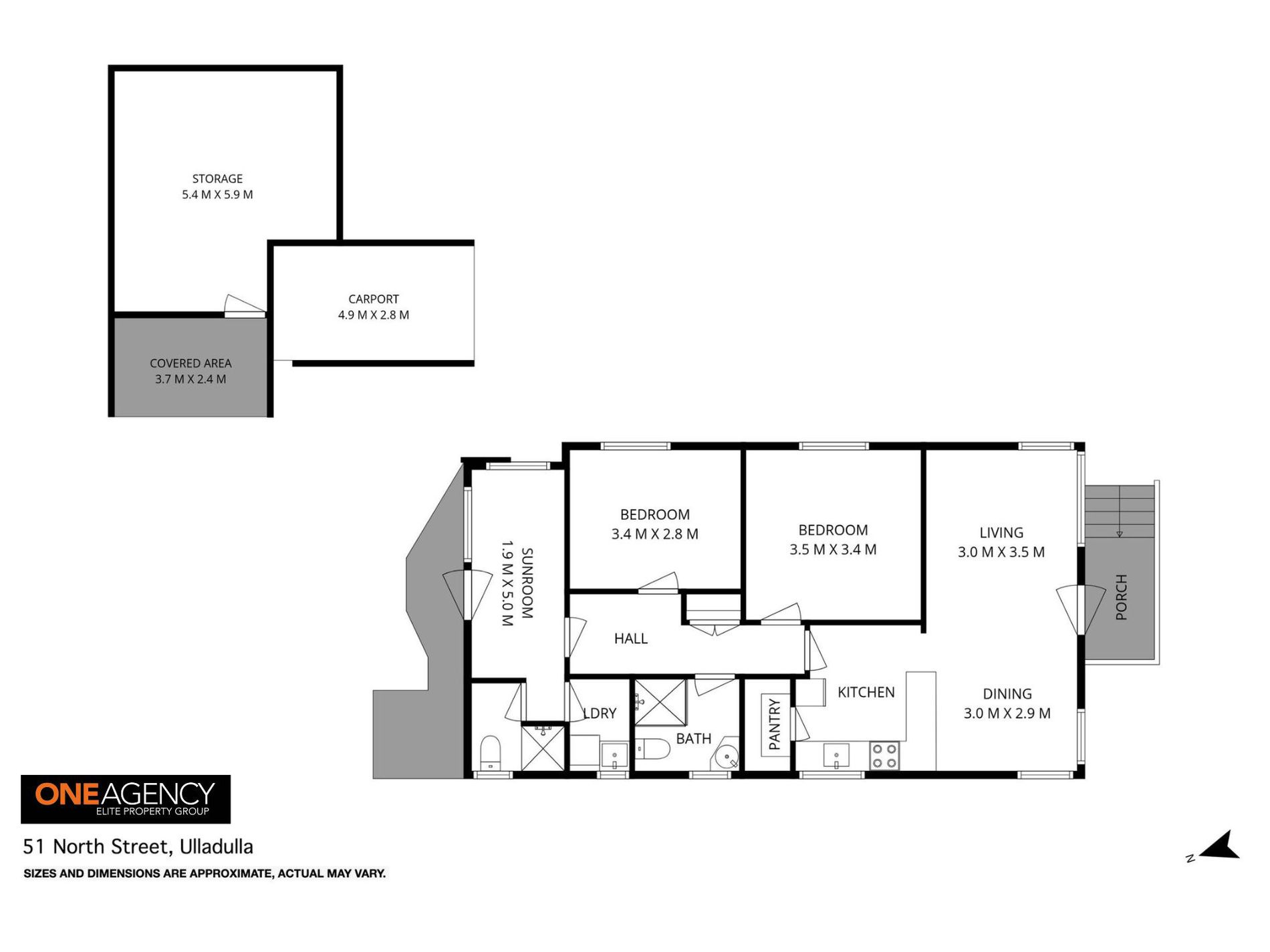
Set on a generous 774sqm block, the existing two-bedroom harbourside cottage is full of the charm and character. The property is neat, functional and liveable, making it an ideal base or rental and while providing the opportunity for renovation or redevelopment. The flexible floor plan includes open plan living, dining and kitchen, along with a sunroom, bathroom, laundry, and storage space. Outdoors, a carport and shed/workshop add further practicality.
The real drawcard lies in the land and location. With a wide frontage, deep backyard and an elevated position, this property offers options for extension, a complete rebuild or second dwelling (subject to council approval) . Ocean glimpses can already be enjoyed, while a second-storey addition has the potential to capture more water views.
Located only A short walk to Ulladulla Harbour, local cafs, restaurants, shops and schools.
Property Highlights:
774 sqm block of land
Existing 2-bedroom cottage, neat and functional throughout
Elevated position with ocean glimpses
Shed/workshop, carport and large backyard for versatile use
Short stroll to Ulladulla's shops, schools, harbour and beaches
Contact Alan 0408 188 661 for more details or to arrange an inspection.





























