'Spacious home in prestige location'
Searching for a generous sized 4 bedroom home at a Premier address?
Then this unique property with its myriad of uses might just be for you!
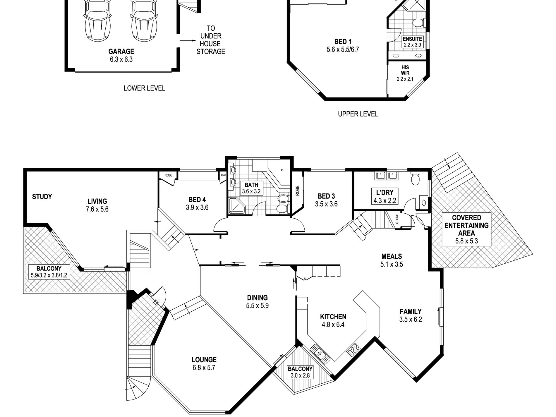
This comfortably established home enjoys mountain views from its private elevated position offering three levels of versatile living. It's peaceful and desirable location is within close proximity to Wollongong University, playing fields and bush walking tracks.
Featuring:
- 4 Large Bedrooms all with built in robes
- Huge master bedroom with two walk in robes (his & hers) including large ensuite.
- Beautiful raked ceilings in formal Lounge with exposed timber beams leading onto three large living areas
- Timber kitchen is well equipped and adjoins the formal dining area
- Airy main bathroom boasting a corner bath
- Billiard room / Rumpus with separate balcony
- Double garage with internal access & ample storage areas including additional off street parking for three vehicles
- Secure level manicured garden ideal for children and pets
- Large 826m2 block in private tranquil cul-de-sac
- Central heating & Solar hot water
- Large laundry with extra WC
Easy walk to Parks, Schools, Shops & Walk to University in twenty minutes
Features
- Air Conditioning
- Ducted Heating
- Balcony
- Outdoor Entertainment Area
- Remote Garage
- Fully Fenced
- Secure Parking
- Built-in Wardrobes
- Rumpus Room
- Workshop
- Broadband Internet Available
- Dishwasher
- Study
- Solar Hot Water



















