Take the opportunity to build your dream home in the new and exclusive "Highlands Estate" in Albion Park, offering breathtaking escarpment views with a semi-rural feel.
Choose between two fantastic blocks - 969m2 and 978m2!
Minutes drive to schools, shops, public transport and only 20 minutes to Wollongong CBD and it's stunning beaches. Easy access to Sydney via Albion Park Rail Train Station, the M7 motorway and Princes Highway.
- Brand New Estate
- Breathtaking escarpment views with semi-rural feel
- Close to schools, shops, transport & within 20 mins drive to Wollongong CBD
- Easy access to Sydney via Albion Park Rail train station, M7 motorway or Princes Hwy
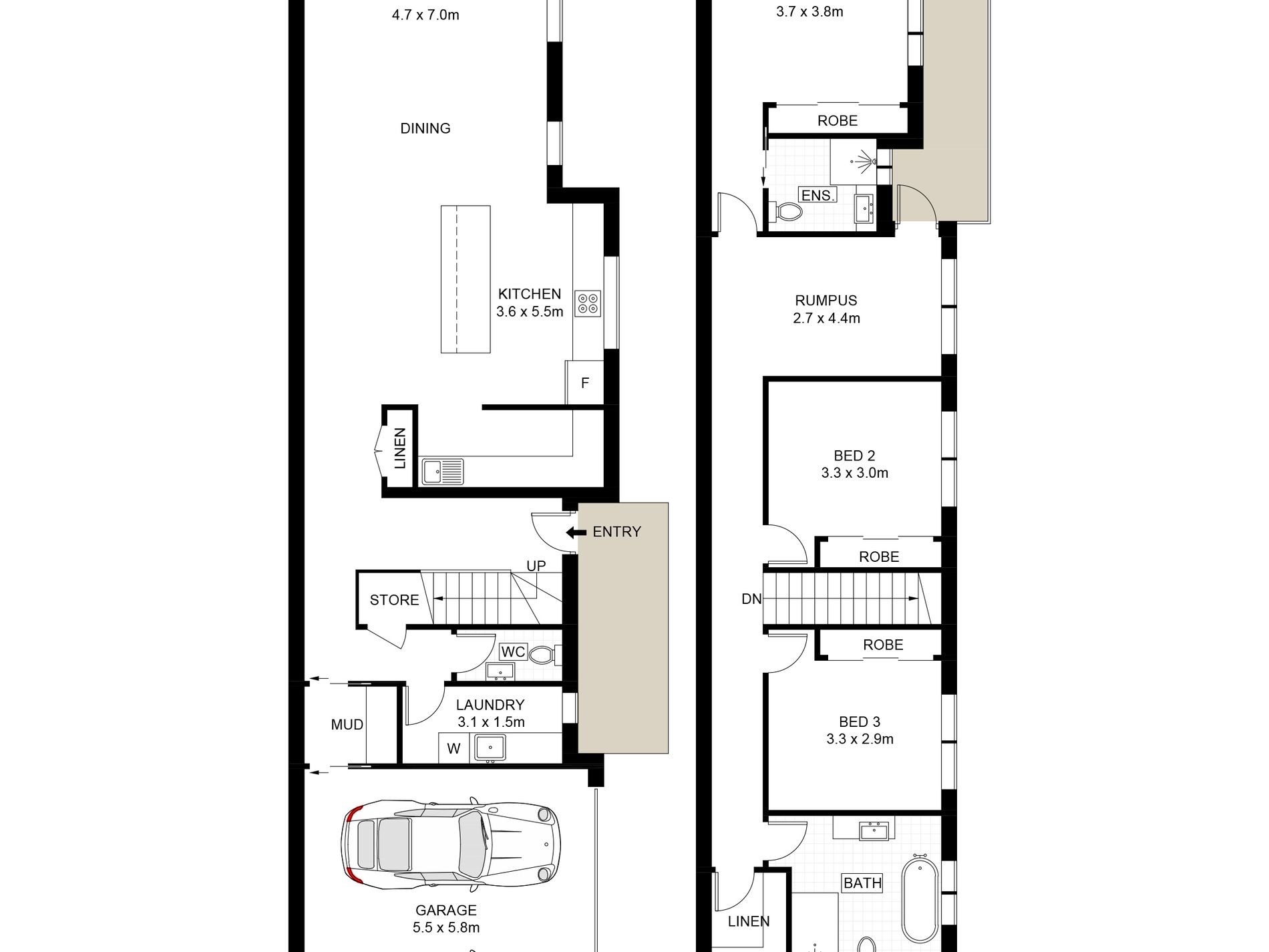
Proposed plans for dual occupancy build - subject to council approval should a purchaser decide to proceed with concept designs.
Contact Exclusive Selling Agents at One Agency today 4257 4515











