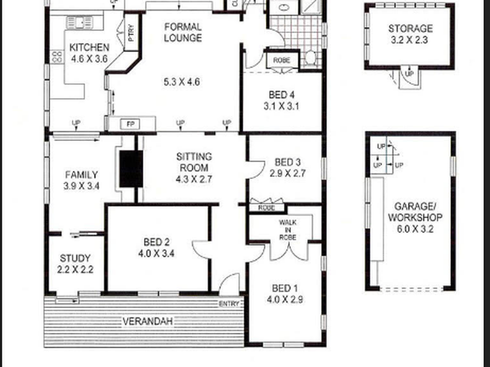
Presented by Robert Gooch and Paul Crinis of One Agency Elite Property Group Shoalhaven is this charming 4 bedroom, 2 bathroom property with classic street appeal to the marketplace, conveniently located only minutes into Nowra CBD.
Having been freshly painted inside and out, this hidden gem has plenty to offer with a formal living area with a ceiling fan and slow combustion fireplace overlooking your own in-ground swimming pool. The original Cedar timber, stain-glass windows and floorboards have been kept giving this property a lot of character and appeal.
A split-level design internally features an office nook/ study that can be used as an informal living area. Flowing down from the office nook/study you will find a revamped country style kitchen with a new dual oven, cooktop plus a brand-new Miele dishwasher. The kitchen also features timber benchtops and high-pitched ceilings and flows out to an open plan formal dining area with plenty of natural light and a sunken bar area. Down the back of the property, you will find a recently painted deck and fully fenced pool area with an easy-care garden.
The renovated main bathroom features new fittings and fixtures with a separate bathroom containing a laundry with easy access to the fully fenced pool area outside. All bedrooms feature timber floorboards with built-in wardrobes, the master bedroom has a walk-in robe.
You certainly dont want to miss this fantastic family home as it has just so much to offer. Make it yours today.
Freshly painted inside and out
New gutters
Timber blinds
All new lighting and fans
New 6.5 kw solar system
New hot water system
Renovated bathroom and laundry
Revamped kitchen
New dual oven & cooktop
New Miele dishwasher
Water tank
inspection by Appointment only.
For more information contact Robert Gooch on 0419100279 or Paul Crinis on 0418204592 or to organize your inspection.
Features
- Air Conditioning
- Split-System Air Conditioning
- Split-System Heating
- Deck
- Outdoor Entertainment Area
- Swimming Pool - In Ground
- Fully Fenced
- Built-in Wardrobes
- Dishwasher
- Floorboards
- Study
- Solar Panels

































