A much-loved family residence boasting many sought-after features, this neat and tidy home provides enviable local convenience just minute from Dapto Mall.
With its perfect blend of comfort and lifestyle, it delivers a superb base for modern living with low-maintenance timber floors, air-conditioning in the lounge/dining area and ceiling fans throughout. The kitchen is attractively provisioned with plenty of cupboard storage, a breakfast bar and a dishwasher.
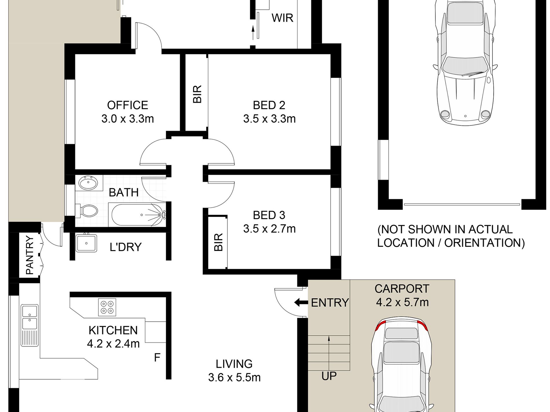
Accessed via the separate office and accompanied by an ensuite, walk-in wardrobe and sliding-door flow to the charming entertainers deck, the master quarters are appointed to impress and offer a peaceful retreat for busy parents. The balance of bedrooms enjoy built- in robes and close proximity to the well-kept main bathroom featuring a combined tub and shower.
This affordable single-storey property comes complete with a private, fully fenced backyard with level lawn and in-ground pool, a huge freestanding garage plus an attached carport, in a superbly central address with Kanahooka High School just 500 metres up the road and Koonawarra Primary, the public pool and Dapto Bowling Club only moments away.
Property Features:
House
3 beds
2 bathrooms
2 toilets
Land is 556m2 (approx.)
Open lounge/dining
Dishwasher
Master ensuite
Master walk-in robe
Built-in robes
Timber floors
Air-conditioning unit
Ceiling fans
All-seasons deck
Level backyard
In-ground pool
Large garage
Carport
Presented by Jason Dorling and Arlo Jones of One Agency Elite Property Group Illawarra
***All information (including but not limited to the property area, floor size, price,
address and general property description) advertised is provided as a convenience to you,
and has been provided to One Agency by third parties.
One Agency do not accept any liability (direct or indirect) for any injury, loss, claim,
damage or any incidental or consequential damages, including but not limited to lost
profits or savings, arising out of or in any way connected with the use of any information,
or any error, omission or defect in the information, contained in the advertising.
The information should not be relied upon and you should make your own enquiries and
seek legal advice in respect of any property.***
Features
- Air Conditioning
- Outdoor Entertainment Area
- Swimming Pool - In Ground
- Built-in Wardrobes
- Dishwasher















