Discover the epitome of craftsmanship and modern elegance in this stunning home. Perfectly positioned on a generous 1,028m block, this meticulously designed residence blends timeless style with unparalleled functionality. With every detail thoughtfully considered, this home offers an elevated lifestyle in one of Burrill Lake's most sought-after locations.
Property Features:
2.7m high ceilings create a sense of openness and grandeur
Designer Kitchen: Caesarstone benchtops, integrated dishwasher, and premium Perrin & Rowe fittings.
Luxurious Bathrooms: Underfloor heating, tile insert grates, and plantation shutters.
Master: Custom-built window seat, plantation shutters, and an exquisite en suite.
Bamboo flooring flows through the living zones, complemented by in-ceiling speakers
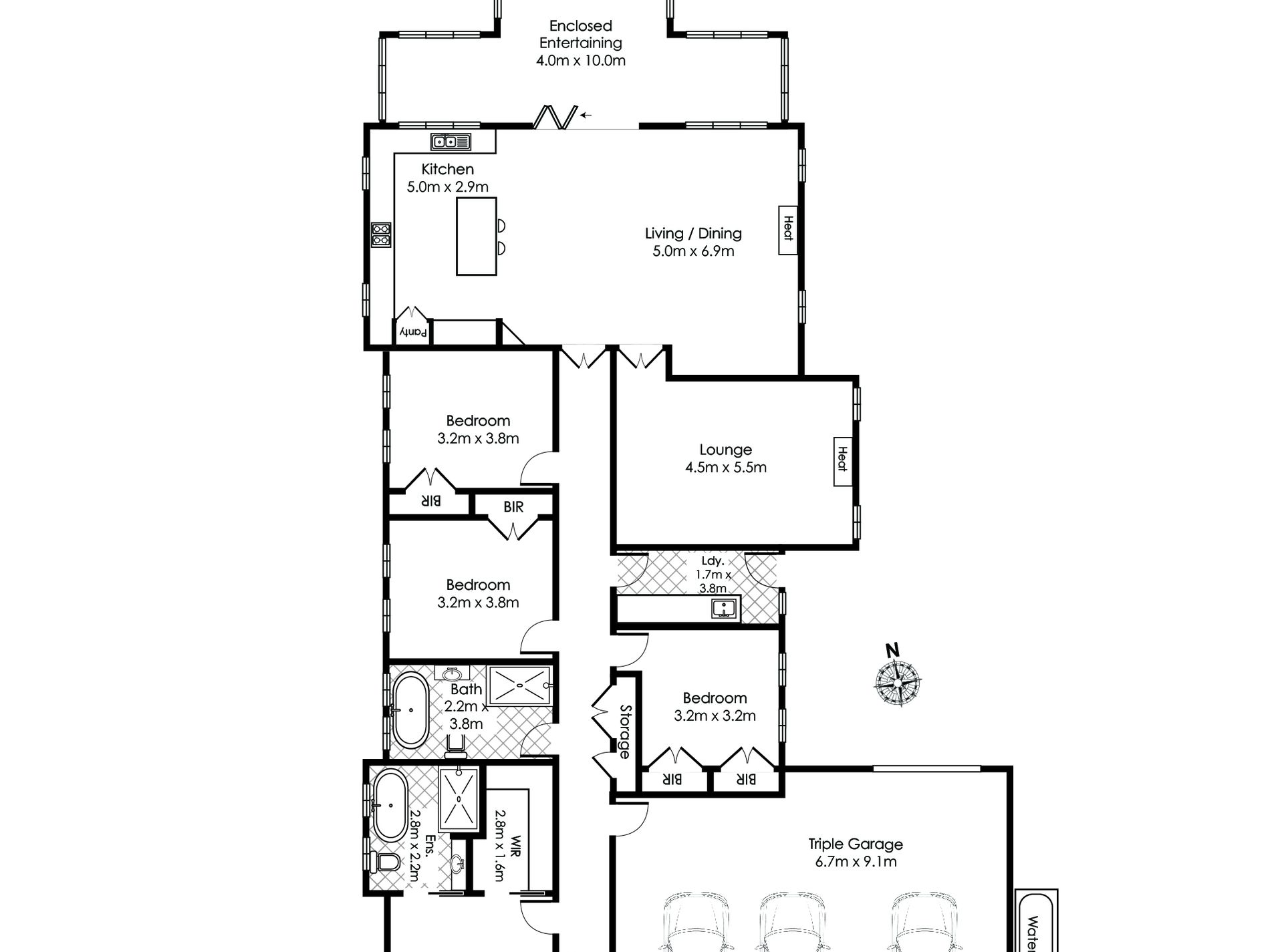
Bi-fold doors with roller fly screens open to an inviting indoor/outdoor room
Triple garage with drive-through rear access, increased panel lift door height for boat storage, and an additional shed.
Private North-Facing Backyard
Premium Extras:
Dual-zone swim spa with a heavy-duty roller cover.
10.36kW solar system and DUX Sunpro 3.6kW solar hot water.
External shower, power points, tumble dryer vent, and front sensor lighting.
Side access to the backyard
3000L water tank
Masterfully built, this residence is a testament to quality and design, offering a lifestyle of luxury and practicality. Whether relaxing in the swim spa, entertaining in style, or enjoying the comfort of ducted air conditioning, this home provides it all.
Contact Kathryn 0474 165 080 or Alan 0408 188 661 to arrange your private inspection and experience the beauty of this home today.
Features
- Air Conditioning
- Ducted Heating
- Ducted Cooling
- Split-System Heating
- Outdoor Entertainment Area
- Remote Garage
- Shed
- Fully Fenced
- Outside Spa
- Secure Parking
- Alarm System
- Built-in Wardrobes
- Rumpus Room
- Dishwasher
- Floorboards
- Solar Panels
- Solar Hot Water
- Water Tank







































































