Spick and span on a generous 659sqm block, this cosy home is designed to accommodate the family household complete with a freestanding garden studio in the north-east facing backyard.
Positioned for ultimate convenience, it offers a fuss-free layout with original pine floorboards, a well-proportioned lounge, a neat bathroom with walk-in shower and a large eat-in kitchen. The all-seasons decked entertaining area provides a special highlight, enjoying serene elevation above the private level lawn, outdoor spa and fire pit.
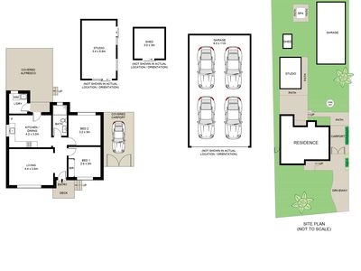
Augmenting the impressive backyard amenities, a handy shed is perfect for your tools and gardening equipment, while a drive-through carport leads to the huge detached garage accommodating four vehicles.
Solar power and under-house storage add significant appeal to a superb features list but its the future potential that will truly appeal, with Albion Park Rail Public School, local takeaways and Wollongong buses virtually on the doorstep and Shellharbour shopping and beaches just minutes away.
Property Features:
House
2 beds
1 bathroom
1 toilet
Land is 659m2 (approx.)
Lounge room
Kitchen/dining
Timber floorboards
Entertainers deck
Garden studio
Level backyard
Outdoor spa
Shed
6.6 kilowatt solar power
Under-house storage
Four-car garage
For more information contact Director/Listing Agent Brendan Mitrovski - 0459 133 554.
Features
- Deck
- Shed

















